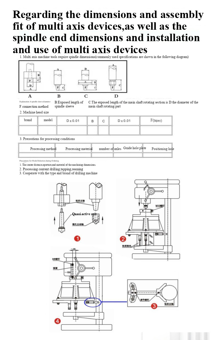
Wiertar wielokrotny, powszechnie znany jako wiertarka z wieloma otworami, wiertarka z wieloma wrzecionami, narzędzie do maszyny do wielu wrzecionych lub głowica wielokrotnego wrzeciona, jest nowym rodzajem urządzeń do przetwarzania otworów. W rzeczywistości jest to głowica Chucka zainstalowana na maszynach wiercenia i stukania, i może jednocześnie przetwarzać wywiercone lub stukane części na dwóch lub więcej osiach, więc nazywa się to maszyną wielopasmową. Wiertar wielopasmowy może jednocześnie przetwarzać wiele otworów na jednej płaszczyźnie i może być instalowane na różnych maszynach wiertniczych, takich jak ćwiczenia ławkowe i głowice zasilające do użycia. Jest to wydajne akcesorium maszynowe, które zwiększa wydajność i zmniejsza koszty, a jakość przetworzonych produktów jest stabilna.
Inne rozmiary można dostosować.
Wspólna wielopasmowa maszyna wiertnicza i wspólna maszyna wiertnicza (w tym ćwiczenia ławkowe, ćwiczenia pionowe, ćwiczenia promieniowe, maszyny wiertnicze i frezarskie, bezpośrednie połączenia silnika, napędowe itp. Mogą być zainstalowane od kilku lub nawet dziesięciu do dwudziestu otworów lub gwintów w tym czasie, o ile zasilanie jest wystarczające, które mogą znacznie poprawić produkcję i wydajność przetwarzania i przetwarzania.
Tytuł
(Dwukasowe regulowane wiertło wielopasmowe, stukanie i gwintowanie, w pełni automatyczne akcesoria do wiercenia, dwusycowe wiertło, wiertło wielorakieczne)







